EXTENSION D'UNE HABITATION POUR UNE P.M.R                                                  Auray

Les travaux concernent la réalisation d’une extension de l’habitation existante, rendue nécessaire suite à un accident de la route ayant entraîné une perte d’autonomie de l’occupant.

Cette extension a pour objectif de permettre le maintien à domicile dans des conditions de sécurité, d’accessibilité et de confort adaptées au handicap, conformément aux recommandations médicales et ergothérapeutiques.

Les aménagements prévus comprennent notamment :

  • La création d’espaces de plain-pied, facilitant la circulation en fauteuil roulant ou avec aides à la mobilité

  • L’élargissement des passages et ouvertures (portes, circulations)

  • L’aménagement d’une chambre adaptée et d’une salle d’eau accessible (douche à l’italienne, barres d’appui, espace de manœuvre)

  • L’adaptation des revêtements de sol pour éviter les risques de chute

  • Une organisation intérieure favorisant l’autonomie et la sécurité au quotidien

L’ensemble des travaux vise à compenser les conséquences fonctionnelles de l’accident et à garantir une qualité de vie compatible avec l’état de santé de la personne concernée.

                     ETAT EXISTANT                      AVANT INTERVENTION

ETUDE

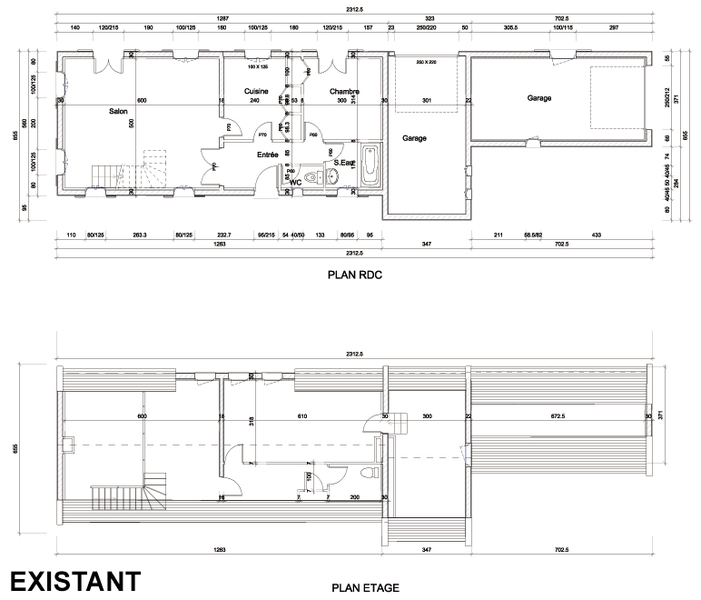
       REHABILITATION et LIAISON DE DEUX HABITATIONS                                                                             Saint-Philibert

Les propriétaires souhaitaient rénover leur nouvelle maison et l'incorporer à la maison existante,afin d'en faire qu'une, pour bénéficier de plus de surface et d’espaces lumineux.

cette maison était restée dans “son jus” depuis de nombreuses années. Tout devait être remis aux normes (réseaux divers, sécurité, isolation, rénovation énergétique…), et aux goûts du jour (façade, intérieurs, lumière intérieure, circulations intérieures, rangements etc.).

Moderniser et rendre davantage fonctionnel ce bien pour une vie de famille était l’objectif !

« Nous souhaitons créer dans cette maison une atmosphère qui nous ressemble ! »

Lumière, volume, aménagement : tout semble avoir changé, pourtant c’est toujours la même maison !  »
 
 

                      ETAT EXISTANT                    AVANT INTERVENTION

   ETUDE

Les photos de la réalisation ne sont pas communiqués respectant

le choix du maître d'ouvrage

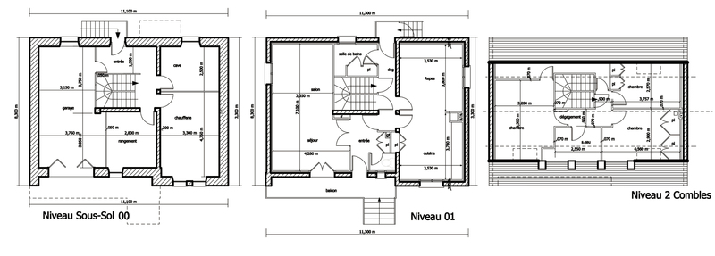
                        REHABILITATION et                                                               AGRANDISSEMENT D'UNE HABITATION                                                                        Crac'h

Le projet consiste en la réhabilitation générale d’une habitation existante, visant à améliorer ses performances énergétiques, son confort et son habitabilité, tout en modernisant son architecture.

Les travaux comprennent en premier lieu la mise en œuvre d’une isolation thermique par l’extérieur (ITE) sur l’ensemble des façades. Cette intervention permettra d’améliorer significativement les performances énergétiques du bâtiment, de réduire les déperditions de chaleur et d’assurer un meilleur confort thermique en toutes saisons. L’ITE sera réalisée avec des matériaux performants et un traitement soigné des finitions afin de s’intégrer harmonieusement à l’environnement bâti existant.

Par ailleurs, le projet prévoit un agrandissement de l’habitation, conçu comme une extension attenante au bâti existant. Cet agrandissement a pour objectif la création d’une suite parentale, comprenant une chambre, une salle d’eau privative et des espaces de rangement. L’extension sera réalisée dans le respect des volumes existants, avec une architecture cohérente et des matériaux en continuité avec l’habitation principale.

L’ensemble du projet vise à valoriser le patrimoine bâti, améliorer la qualité de vie des occupants et répondre aux exigences actuelles en matière de performance énergétique, de confort et d’esthétique.

ETAT EXISTANT

AVANT INTERVENTION

   ETUDE

      REHABILITATION D'UNE HABITATION                                                                         La Trinité Sur Mer

Le projet concerne la réhabilitation générale d’une habitation individuelle construite dans les années 1970, avec pour objectif d’adapter le bâtiment aux usages contemporains, d’améliorer le confort des occupants et de valoriser son implantation privilégiée face à la mer.

La réhabilitation prévoit une restructuration complète de l’organisation intérieure des pièces. Les espaces de vie sont repensés afin de favoriser la fluidité des circulations, l’apport de lumière naturelle et les vues vers l’extérieur. Les pièces de jour sont regroupées et orientées vers la façade offrant la vue mer, tandis que les espaces nuit sont redistribués pour garantir confort, intimité et fonctionnalité. Cette nouvelle organisation permet une lecture plus claire des volumes et une meilleure adéquation entre les usages et les espaces.

Le projet intègre la création de larges baies vitrées en façade, en remplacement ou en modification des ouvertures existantes. Ces nouvelles menuiseries, aux dimensions généreuses, ont pour objectif de mettre en valeur la vue mer, d’optimiser l’éclairage naturel et de renforcer la relation entre les espaces intérieurs et l’environnement extérieur. Leur implantation est étudiée afin de préserver l’équilibre architectural du bâti existant et de garantir de bonnes performances thermiques.

L’ensemble des travaux s’inscrit dans une démarche de modernisation du bâti, tout en respectant l’identité architecturale de la maison d’origine, afin d’offrir un cadre de vie confortable, lumineux et ouvert sur le paysage maritime.

                           ETAT EXISTANT                           AVANT INTERVENTION

ETUDE

Version imprimable | Plan du site
© claude LE BORGNE Architecte d'Intérieur CFAI

Appel

Email

Plan d'accès